发布时间:2020-03-26 10:38:00 点击:1687
导语:红蚂蚁装饰-装修宝典栏目为您提供多方面详细的南京别墅装修,别墅软装设计,南京装修公司哪家好等装修知识及注意事项,涵盖装修前期准备,装修主材选购,装修设计风格,帮助南京业主快速了解装修知识,装饰完美家居生活!
“吹面不寒杨柳风”,春至好运来,随着国内新型冠状病毒肺炎疫情逐渐转好,小区得已解封,红蚂蚁装饰的装修工人们也终于能入驻小区开工了。
PART 1 START

设计师简介
汤梦斐
从业15年
设计理念:用真诚缔造“宜居”好空间
设计案例:钟山高尔夫、滟紫台、东方玉园、雅居乐花园、颐和南园、拉德芳斯、京门府、瑞安翠湖山、五矿晏山居、紫庐花园等
小区介绍

荣盛首府
总建筑面积约17万方,其中住宅面积约12万方,规划了12栋18F高层住宅和一栋5F商业综合体,打造约2.2低密度高品质人居。项目规划建筑面积约100-160㎡奢阔大平层,主力户型面积在140㎡左右。
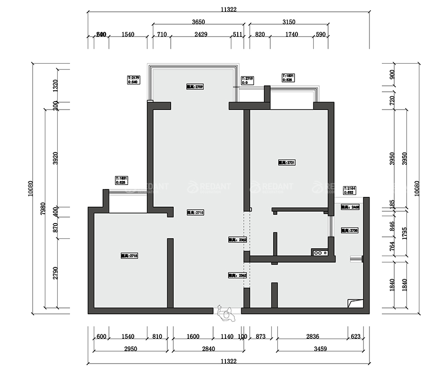
Pic.平面图


设计说明
純粹,抽象,化繁為簡,
在追求功能的同時,當下設計也正探索,
藝術與自然和諧統一的平衡點。
可自由,
可深邃,
可容萬物之境。
是空間意蘊與人文型格的默契。
這正是,
四季三餐皆是心之所向。
效果图






开工现场





PART 2 START

设计师简介
马郡
从业10年
设计理念:设计是以人为本,不脱离生活的艺术,我用善于发现美的眼睛,综合生活方式营造出你最满意的家
设计案例:苏宁滨江一号、世茂荣里、翠屏紫气钟山、钟鼎山庄、依云溪谷、紫园、凤凰和熙、紫金华府、高科荣境等
小区介绍

翠屏清华园
东有月牙湖,南有翠屏山,位于将军大道北段,距新街口广场不到11公里,西依拥有数十万亩原生态山林的翠屏山森林公园,取道上山仅200米。东临05年启用,规模大于麦德龙的3万平方米易初莲花超市。
Pic.平面图

设计说明
家是解开束缚、拥抱自由之地,
家应当是舒适温暖的,
是于万千灯火之中,
独属于自己的一盏灯。
简洁明快的设计风格,
让阳光在家中自由流淌;
通透明亮的空间格局,
为归家之人舒缓身心,
放空自我。
开工现场








PART 3 START
设计师简介
陈志刚

从业8年
设计理念:用所学所见为客户营造更好的居住体验
设计案例:保利西江月、世茂荣里、中冶盛世滨江、雅居乐滨江国际、滨江半岛揽江府、高科荣境、中航樾府等
小区介绍

拉德芳斯
南京拉德芳斯整个社区又被富春江东街划分为两个组团,以北组团成为“梧桐花园北苑”,以南组团名为“梧桐花园南苑”。整个项目的设计规划、景观规划由香港著名何显毅建筑师楼负责设计,体现城市花园建筑的气派和豪华。
Pic.平面图

Before → After

设计说明
法式的浪漫,
流淌在家中的每一个细节,
每一处光影。
贴近生活的极简法式,
拉近了浪漫与生活的距离,
典雅与时尚在这里共存。
金属的刚硬绚丽,布艺的柔软雅致,
在阳光与灯光之下,
交织出色彩与线条的美感。
效果图






VR实景,扫描二维码,查看更多~
开工现场
2020年春日,与您一起,见证新家初始






Go on
小区介绍

绒庄新村
绒庄新村小区离张府园地铁站只有五分钟路程,接近市中心新街口,小区设施完善,有监控摄像头,居住环境安全,周边有南京一中,建邺路小学等,交通便利,生活设施齐全。
Pic.平面图

Before → After

设计说明
家的韵味离不开家的文化,
书房与起居室相连,
让书香、书韵不知不觉与家连为一体,
让博学优雅深入家的骨髓。
身处简洁大方、禅意深远之地,
于喧嚣之中,
找到属于自己的宁静。
效果图




DESIGN







开工现场



疫情还没有结束,在外奔波的小伙伴们还是要多注意防疫工作呀,健康的人才能让家更幸福、更安全。红蚂蚁装饰严格遵守疫情防控要求,保障您的家庭健康与安全。
上一篇: 开工大吉 | 家的蜕变,从现在开始
下一篇: 开工大吉 | 热爱生活,塑造温暖的家
请认真填写您的正确信息
2021-01-21 14:47:00
红蚂蚁装饰-装修宝典栏目为您提供多方面详细的南京别墅装修,别墅软装设计,南京装修公司哪家好等装修知识及注意事项,涵盖装修前期准备,装修主材选购,装修设计风格,帮助南京业主快速了解装修知识,装饰完美家居生活!
2021-01-10 13:54:00
红蚂蚁装饰-装修宝典栏目为您提供多方面详细的南京别墅装修,别墅软装设计,南京装修公司哪家好等装修知识及注意事项,涵盖装修前期准备,装修主材选购,装修设计风格,帮助南京业主快速了解装修知识,装饰完美家居生活!
2020-06-30 09:24:00
红蚂蚁装饰-装修宝典栏目为您提供多方面详细的南京别墅装修,别墅软装设计,南京装修公司哪家好等装修知识及注意事项,涵盖装修前期准备,装修主材选购,装修设计风格,帮助南京业主快速了解装修知识,装饰完美家居生活!
2020-06-02 11:46:00
红蚂蚁装饰-装修宝典栏目为您提供多方面详细的南京别墅装修,别墅软装设计,南京装修公司哪家好等装修知识及注意事项,涵盖装修前期准备,装修主材选购,装修设计风格,帮助南京业主快速了解装修知识,装饰完美家居生活!
2020-03-21 16:53:00
红蚂蚁装饰,南京红蚂蚁装饰,为您提供当前流行的南京家装案例,南京装修效果图,涵盖装修设计、家装案例和南京家装设计大全,为您装品质家居提供设计参考。
2020-01-05 16:07:00
红蚂蚁装饰-装修宝典栏目为您提供多方面详细的南京别墅装修,别墅软装设计,南京装修公司哪家好等装修知识及注意事项,涵盖装修前期准备,装修主材选购,装修设计风格,帮助南京业主快速了解装修知识,装饰完美家居生活!